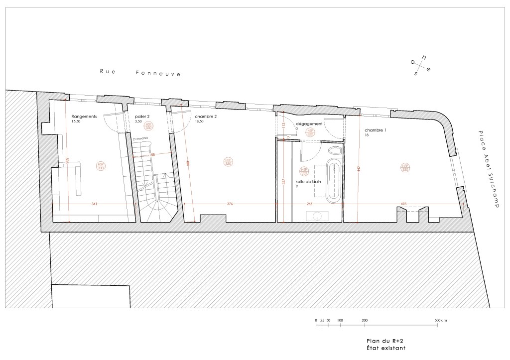
restructuration lourde d’un immeuble du XVIIIe siècle comprenant trois logements et un commerce
pierre farret architecte – agence métropole
étude, 2021-2022




















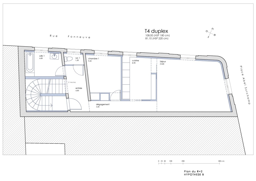
restructuration lourde d’un immeuble du XVIIIe siècle comprenant trois logements et un commerce
pierre farret architecte – agence métropole
étude, 2021-2022



















