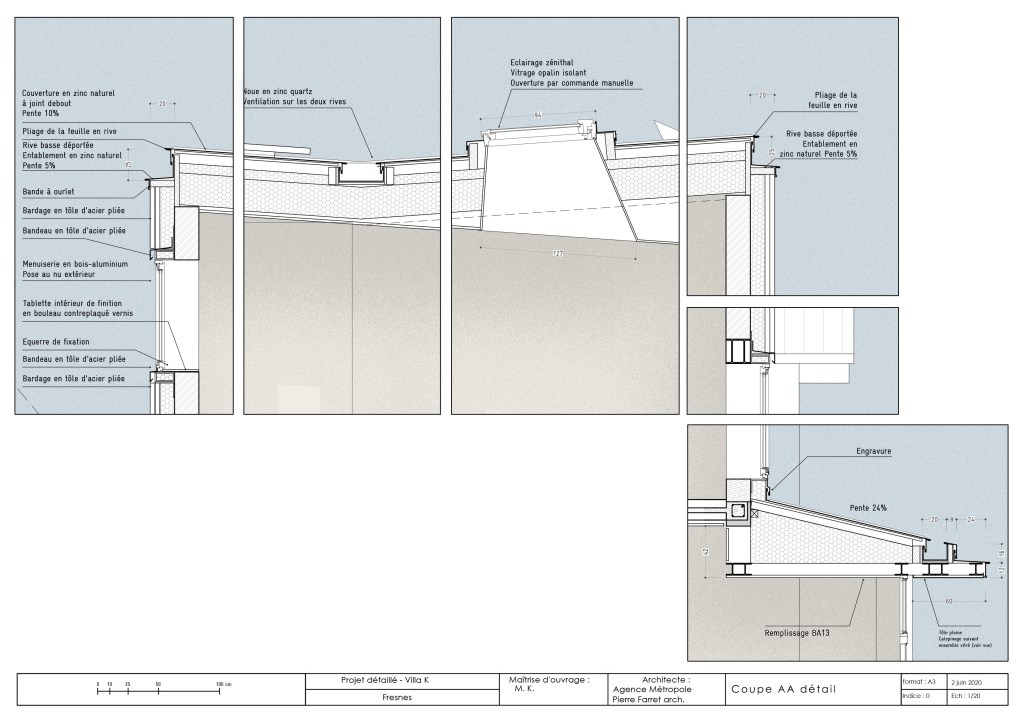
Fresnes
Surélévation extension d’une maison individuelle
Pierre Farret – agence métropole
Isaac Naffer, assistant
chantier en cours, livraison en 2025.




































Fresnes
Surélévation extension d’une maison individuelle
Pierre Farret – agence métropole
Isaac Naffer, assistant
chantier en cours, livraison en 2025.



































