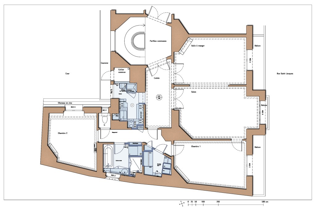
réaménagement d’une appartement, rue Saint-Jacques, Paris 5e
agence métropole – pierre farret architecte, mission complète, 2019-2021
Cloisonnement, doublage, plomberie, peinture : Ordep
Menuiserie intérieure et extérieure : Menuiserie Saint-Antoine
livré en 2021





























































