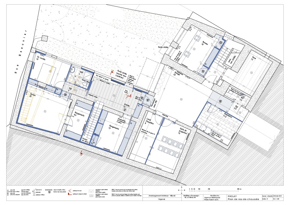
Rénovation intérieure d’une villa à Orgeval, 2019-2020
agence métropole – pierre farret, mission de conception
projet livré en 2020
























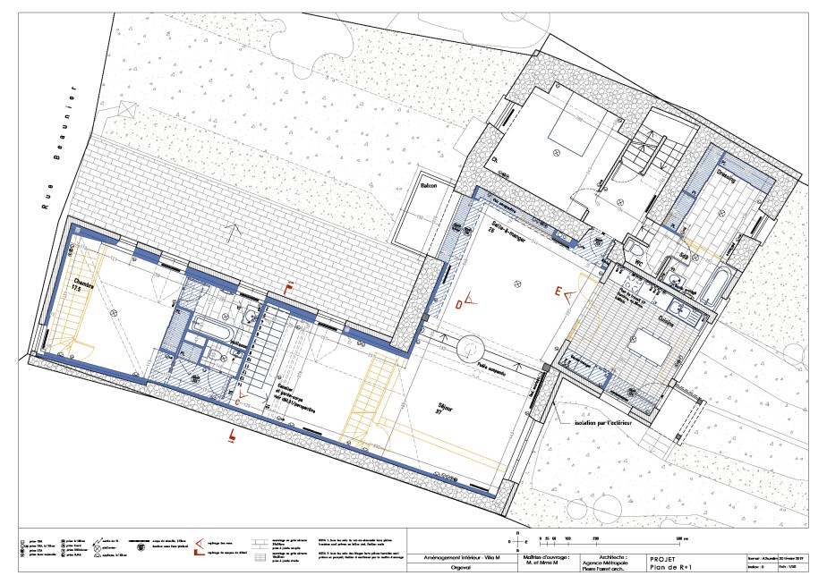
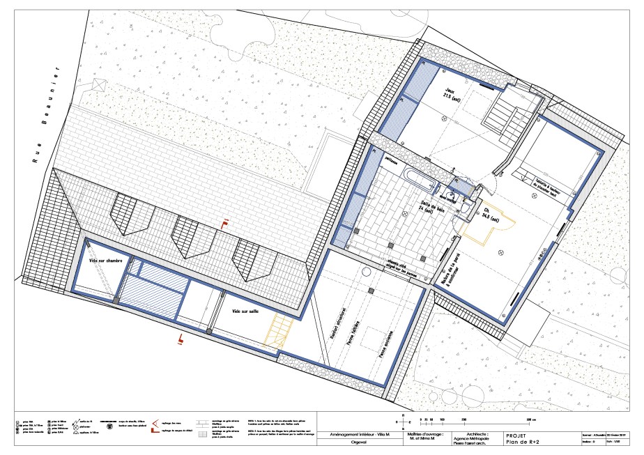
Rénovation intérieure d’une villa à Orgeval, 2019-2020
agence métropole – pierre farret, mission de conception
projet livré en 2020























